成都道52号

添加收藏
总图

概述

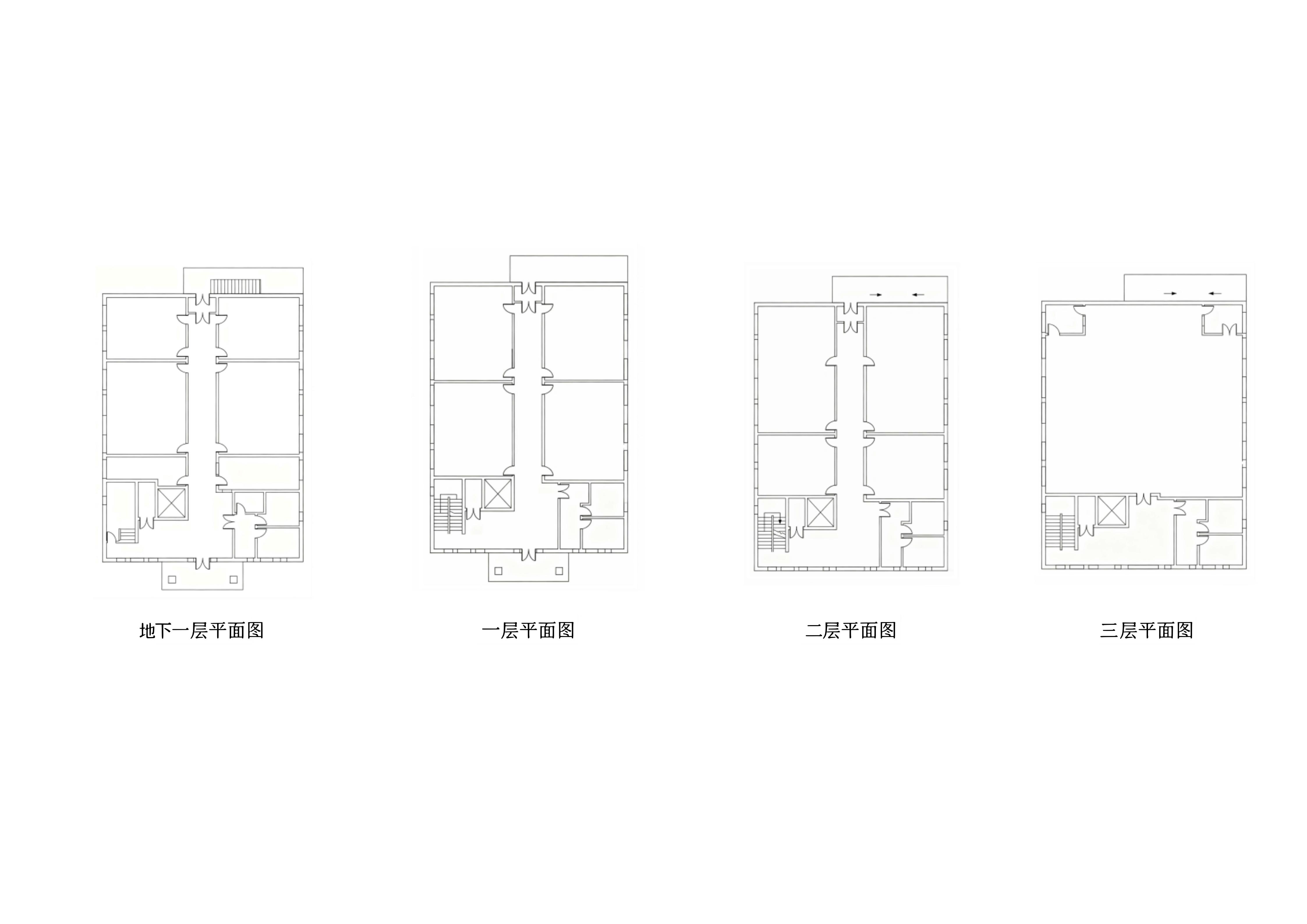
成都道52号,一般保护级别历史风貌建筑,建于20世纪30年代,建筑面积1456.23平方米,三层砖木结构独立式住宅,带半地下室,建筑平面对称,入口为嵌入式门廊,条石台阶,入口上方为二层阳台兼做雨篷。外檐为硫缸砖清水墙面,首层窗台以下为混水墙面,坡屋顶,筒瓦屋面,檐部出挑,檐下设齿饰。

房型图

※ 建筑情况以签订合约为准